Villen im Bauhausstil: Vorschlag 7

Dieser Entwurf ist enthalten in den Versionen:

- meinHausplaner PLUS 150 Häuser Edition

- meinHausplaner PRO 150 Häuser Edition

und natürlich in der Profi-Version Bauset-Hausplaner.

 

Möchten Sie diesen Entwurf für sich umplanen und kalkulieren ? Mit den oben aufgeführten meinHausplaner-Versionen kein Problem. Besuchen Sie jetzt den meinHausplaner-Online-Shop - und setzen Sie Ihre Ideen spielerisch einfach am eigenen PC um !

Wohnfläche gesamt    125,88 m²    
Wohnfläche Erdgeschoss   62,53 m²    
Wohnfläche Dachgeschoss    63,35 m²    
         
Bruttorauminhalt    688,981 m³    
         
Bruttogeschossfläche    238,68 m²    
         
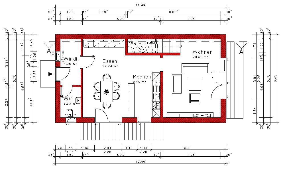
Raumaufteilung

     
         
Erdgeschoss   Wohnen     23,81 m²
    Essen   22,24 m²
    Kochen   8,19 m²
    Windf.    4,96 m²
    WC   3,33 m²
         
Dachgeschoss   Eltern   28,24 m²
    Kind    18,40 m²
    Bad     12,28 m²
    Flur   4,43 m²

Die komplette Planung(Grundrisse, Ansichten, Schnitte, Bautragspläne), Mengenberechnung, Kalkulation und Visualisierung dieses Hauses wurde erstellt mit der Software Bauset-Hausplaner.

 

Die kompletten Daten sind als Vorlagen für unsere Softwareprodukte Bauset, Bauset-Hausplaner und meinHausplaner verfügbar.

 

Bauset-Hausplaner basiert auf Bauset und ist ein Produkt der Bott EDV-Systeme GmbH

Verwenden Sie unsere Planungsvorlagen und meinHausplaner-Software - kostenlos für Sie als privaten Bauherren.

 

mehr