Villen im Bauhausstil: Vorschlag 15

Dieser Entwurf ist reserviert für die Profi-Lösung:

Bauset-Hausplaner.

Wohnfläche gesamt    118,30 m²    
Wohnfläche Erdgeschoss   59,76 m²    
Wohnfläche Dachgeschoss    58,54 m²    
         
Bruttorauminhalt    645,996 m³    
         
Bruttogeschossfläche    232,98 m²    
         
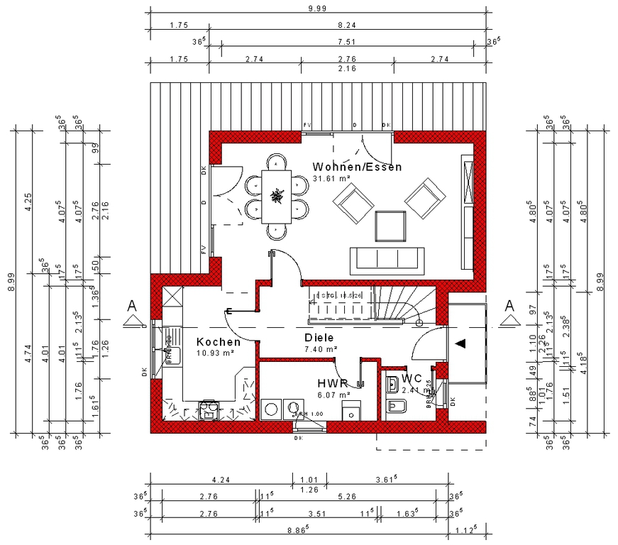
Raumaufteilung

     
         
Erdgeschoss   Wohnen/Essen     31,61 m²
    Kochen   10,93 m²
    Diele   8,74 m²
    Hauswirtschaft   6,07 m²
    WC   2,41 m²
         
Dachgeschoss   Kind 1    12,59 m²
    Kind 2    12,36 m²
    Eltern    12,32 m²
    Flur     9,41 m²
    Bad   6,15 m²
    Ankleiden   5,71 m²

Die komplette Planung(Grundrisse, Ansichten, Schnitte, Bautragspläne), Mengenberechnung, Kalkulation und Visualisierung dieses Hauses wurde erstellt mit der Software Bauset-Hausplaner.

 

Die kompletten Daten sind als Vorlagen für unsere Softwareprodukte Bauset, Bauset-Hausplaner und meinHausplaner verfügbar.

 

Bauset-Hausplaner basiert auf Bauset und ist ein Produkt der Bott EDV-Systeme GmbH

Verwenden Sie unsere Planungsvorlagen und meinHausplaner-Software - kostenlos für Sie als privaten Bauherren.

 

mehr