Villen im Bauhausstil: Vorschlag 33

Dieser Entwurf ist reserviert für die Profi-Lösung:

Bauset-Hausplaner.

Wohnfläche gesamt    160,81 m²    
Wohnfläche Erdgeschoss   70,84.m²    
Wohnfläche Obergeschoss   89,97 m²    
         
Bruttorauminhalt   783,071 m³    
         
Bruttogeschossfläche    279,41 m²    
         
Raumaufteilung

     
         
Erdgeschoss   Wohnen/Essen     48,22 m²
    Kochen   12,74 m²
    Diele    3,23 m²
    WC    2,22 m²
    Abst.   2,22 m²
    Flur    2,21 m²
         
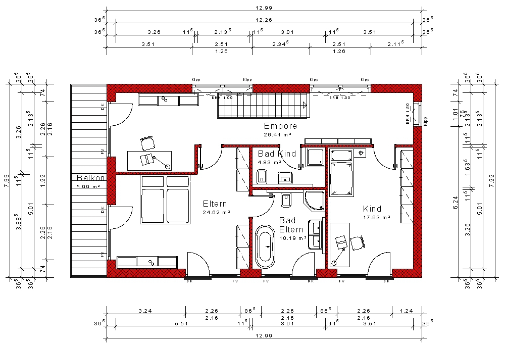
Obergeschoss   Empore    26,41 m²
    Eltern    24,62 m²
    Kind    17,93 m²
    Balkon     5,99 m²
    Bad Eltern   10,19 m²
    Bad Kind   4,83 m²

Die komplette Planung(Grundrisse, Ansichten, Schnitte, Bautragspläne), Mengenberechnung, Kalkulation und Visualisierung dieses Hauses wurde erstellt mit der Software Bauset-Hausplaner.

 

Die kompletten Daten sind als Vorlagen für unsere Softwareprodukte Bauset, Bauset-Hausplaner und meinHausplaner verfügbar.

 

Bauset-Hausplaner basiert auf Bauset und ist ein Produkt der Bott EDV-Systeme GmbH

Verwenden Sie unsere Planungsvorlagen und meinHausplaner-Software - kostenlos für Sie als privaten Bauherren.

 

mehr