Häuser im Stadthausstil: Vorschlag 20

Dieser Entwurf ist reserviert für die Profi-Lösung:

Bauset-Hausplaner.

Wohnfläche gesamt    147,32 m²    
Wohnfläche Erdgeschoss   78,66 m²    
Wohnfläche Obergeschoss   68,66 m²    
         
Bruttorauminhalt    919,018 m³    
         
Bruttogeschossfläche   299,40 m²    
         
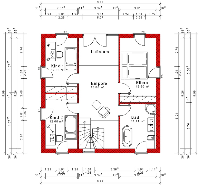
Raumaufteilung

     
         
Erdgeschoss   Wohnen/Essen     47,27 m²
    Kochen   9,57 m²
    Diele    9,11 m²
    Hauswirtschaft   6,14 m²
    Abst.    3,68 m²
    WC   2,89 m²
         
Obergeschoss   Eltern   16,50 m²
    Empore   15,65 m²
    Kind 1    12,55 m²
    Kind 2    12,55 m²
    Bad    11,41 m²

Die komplette Planung(Grundrisse, Ansichten, Schnitte, Bautragspläne), Mengenberechnung, Kalkulation und Visualisierung dieses Hauses wurde erstellt mit der Software Bauset-Hausplaner.

 

Die kompletten Daten sind als Vorlagen für unsere Softwareprodukte Bauset, Bauset-Hausplaner und meinHausplaner verfügbar.

 

Bauset-Hausplaner basiert auf Bauset und ist ein Produkt der Bott EDV-Systeme GmbH

Verwenden Sie unsere Planungsvorlagen und meinHausplaner-Software - kostenlos für Sie als privaten Bauherren.

 

mehr