Haus des Monats September 2017

Wieder haben wir uns für ein Haus mit Flachdach und umlaufendem Attikawandkranz entschieden. Und zwar mit einfachst möglichen Architektur - einem einfachen Würfel ohnen Fassadenversprung. Wie ein Monolith steht das Gebäude vor uns und wirkt trotzdem in seiner Schichtheit äußerst elegant. Erreicht wird dieser Effekt durch den klugen Einsatz der beiden Putzfarben, die das Gebäude optisch zwischen schmaler Giebel und langer Gartenseite auftrennt. 

 

Gerade die beiden großen 3-flüglichen Verglasungen der Schmalseitegenen dem Gebäude eine Dynamik, die bei der überraschend kleinen Grundfläche eigentlich nicht zu erwarten ist. Mit kleinstem planerischem Aufwand kann das Gebäude ein eine Doppelhaushälfte umgeplant werden und eignet sich hervorragend für schmale Grundstücke.

 

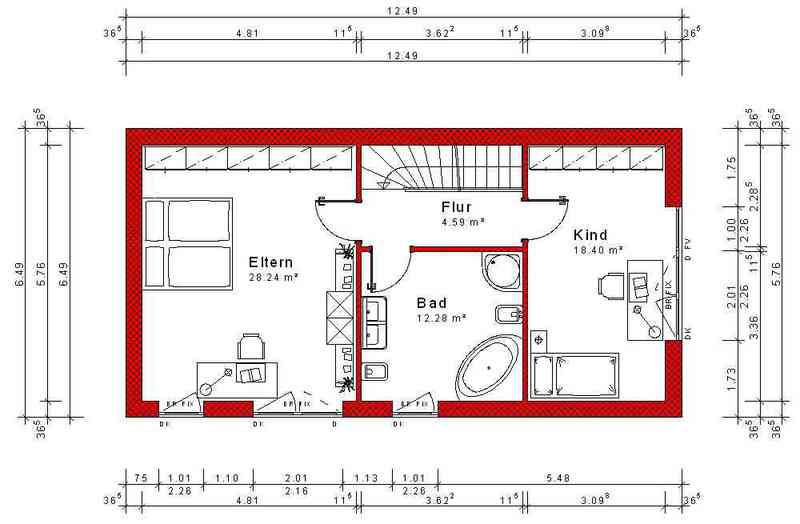
Die Grundrisse verzichten auf eine große Anzahl von Räumen zu gunsten weniger, dafür aber einladend großer Zimmer. Das ergibt zudem wenig Innenwände und Innentüren. Überhaupt ist der Entwurf auf niedrige Baukosten ausgelegt - auch wenn die großen Glaselemente einen gewissen Luxus darstellen.

Zur 3D-Begehung Erdgeschoss bitte Geschossperspektive anklicken !

Zur 3D-Begehung Obergeschoss bitte Geschossperspektive anklicken !

Die komplette Planung(Grundrisse, Ansichten, Schnitte, Bautragspläne), Mengenberechnung, Kalkulation und Visualisierung dieses Hauses wurde erstellt mit der Software Bauset-Hausplaner.

 

Die kompletten Daten sind als Vorlagen für unsere Softwareprodukte Bauset, Bauset-Hausplaner und meinHausplaner verfügbar.

 

Bauset-Hausplaner basiert auf Bauset und ist ein Produkt der Bott EDV-Systeme GmbH

Verwenden Sie unsere Planungsvorlagen und meinHausplaner-Software - kostenlos für Sie als privaten Bauherren.

 

mehr