Haus des Monats Februar 2017

Das Haus des Monats Februar wirkt größer als es tatsächlich ist. Durch die Rücknahme des Baukörper im Erdgeschoss und Oberschoss entsteht Platz für die große überdachte Terrasse und die zum Garten hin umlaufende Balkongalerie im Obergeschoss, von der beide Kinderzimmer und das elterliche Schlafzimmer profitieren. Der Rücksprung korrespondiert mit dem großen Tragpfeiler, der ein echter Blickfang in der Fassade ist.

 

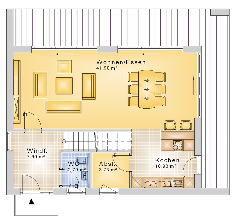
Im Erdgeschoss sind Treppe und Funktionsräume zu einem Block zusammengefaßt, so dass trotz Rücksprung viel Platz für den großen offenen Wohn-/Ess-Kochbereich bleibt. Ohne den Rücksprung im Obergeschoss gibt es zwei Kinderzimmer und Schlafzimmer mit Balkon ohne störende Dachschrägen.

Zur 3D-Begehung Erdgeschoss bitte Geschosspersepktive anklicken !

Zur 3D-Begehung Obergeschoss bitte Geschosspersepktive anklicken !

Die komplette Planung(Grundrisse, Ansichten, Schnitte, Bautragspläne), Mengenberechnung, Kalkulation und Visualisierung dieses Hauses wurde erstellt mit der Software Bauset-Hausplaner.

 

Die kompletten Daten sind als Vorlagen für unsere Softwareprodukte Bauset, Bauset-Hausplaner und meinHausplaner verfügbar.

 

Bauset-Hausplaner basiert auf Bauset und ist ein Produkt der Bott EDV-Systeme GmbH

Verwenden Sie unsere Planungsvorlagen und meinHausplaner-Software - kostenlos für Sie als privaten Bauherren.

 

mehr