Haus des Monats November 2018

Zur 360°-Begehung: Bitte Bild anklicken !

Zur 360°-Begehung: Bitte Bild anklicken !

Wer würde nicht gerne in dieser Villa wohnen ? Das Haus November 2018 ist ein Traum für viele Bauherren*innen. Großzügige, offene Räume im Erdgeschoss und lichtdurchflutete Schlafräume im Obergeschoss bieten viel Platz für anspruchsvolle Bewohner. Akzente setzen nicht nur die großen Fensterflächen. Der eigentliche Blickfang sind die großen Pergolen. Mit ihnen wirkt das Gebäude noch größer, als es tatsächlich ist. Der Terrassenbereich geht so fließend in den Wohnbereich über. Im Sommer sorgt die Wärmeschutzverglasung der Pergola dafür, dass die Räume im Erdgeschoss nicht überhitzen.

 

Schauen Sie sich das Gebäude doch auch mal von innen an. Weiter unten finden Sie die virtuellen Geschossbegehungen - als ob das Gebäude schon gebaut wäre ! Wir wünschen Ihnen da viel Spass !

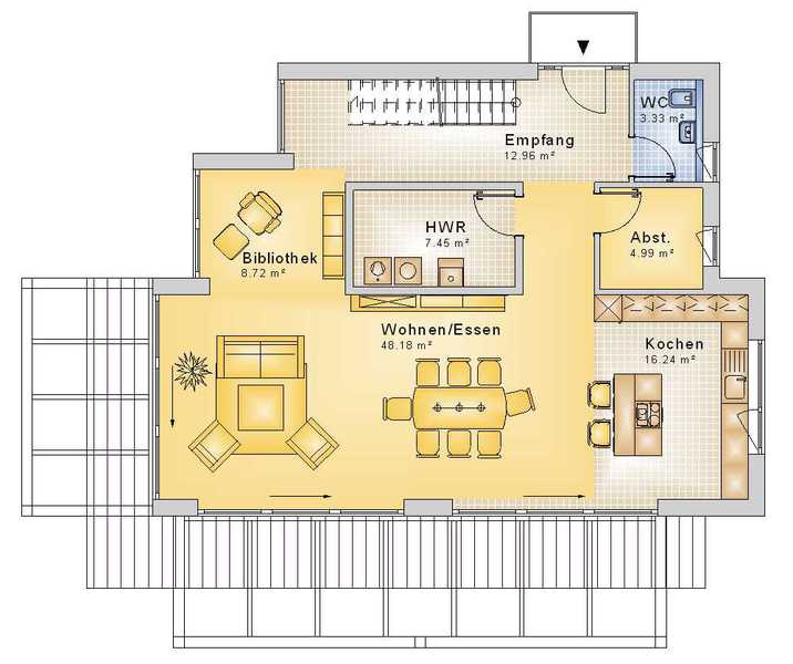
3D-Begehung Erdgeschoss

Zur 3D-Begehung des Grundrisses: Bitte Bild anklicken !

3D-Begehung Obergeschoss

Zur 3D-Begehung des Grundrisses: Bitte Bild anklicken !

Die komplette Planung(Grundrisse, Ansichten, Schnitte, Bautragspläne), Mengenberechnung, Kalkulation und Visualisierung dieses Hauses wurde erstellt mit der Software Bauset-Hausplaner.

 

Die kompletten Daten sind als Vorlagen für unsere Softwareprodukte Bauset, Bauset-Hausplaner und meinHausplaner verfügbar.

 

Bauset-Hausplaner basiert auf Bauset und ist ein Produkt der Bott EDV-Systeme GmbH

Verwenden Sie unsere Planungsvorlagen und meinHausplaner-Software - kostenlos für Sie als privaten Bauherren.

 

mehr