Häuser mit Pultdach: Haus PD-24

Dieser Entwurf ist reserviert für die Profi-Lösung:

Bauset-Hausplaner.

Wohnfläche gesamt    191,38 m²    
Wohnfläche Erdgeschoss   95,74 m²    
Wohnfläche Dachgeschoss    95,64 m²    
         
Bruttorauminhalt    1061,436 m³    
         
Bruttogeschossfläche    362,76 m²    
         
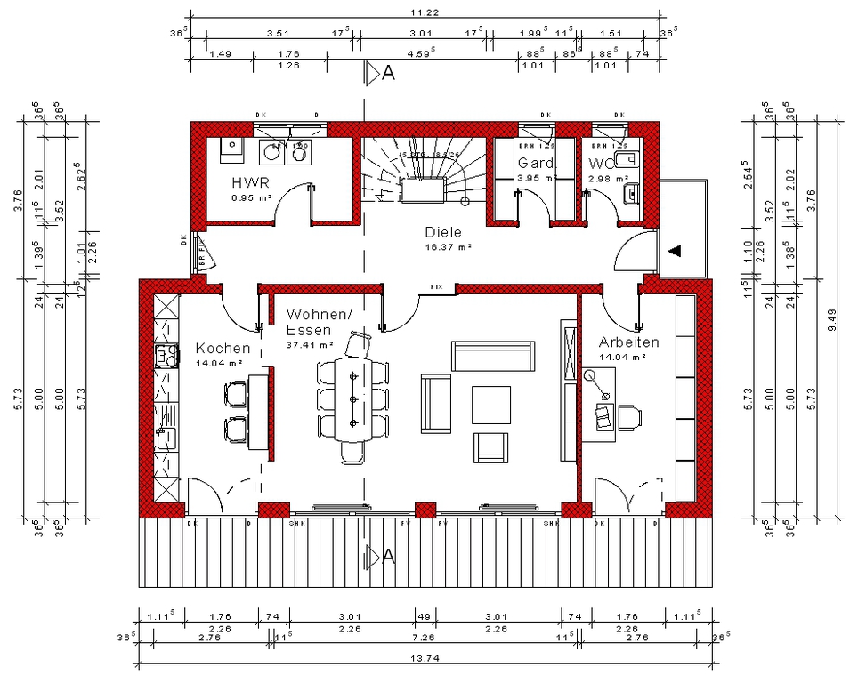
Raumaufteilung

     
         
Erdgeschoss   Wohnen/Essen     37,41 m²
    Diele   16,37 m²
    Kochen    14,04 m²
    Arbeiten    14,04 m²
    Hauswirtschaft   6,95 m²
    Garderobe    3,95 m²
    WC   2,98 m²
         
Dachgeschoss   Eltern    16,24 m²
    Kind 1    16,24 m²
    Kind 2    15,92 m²
    Kind 3     15,89 m²
    Flur   15,70 m²
    Bad Eltern   7,94 m²
    Bad Kinder   7,71 m²

Die komplette Planung(Grundrisse, Ansichten, Schnitte, Bautragspläne), Mengenberechnung, Kalkulation und Visualisierung dieses Hauses wurde erstellt mit der Software Bauset-Hausplaner.

 

Die kompletten Daten sind als Vorlagen für unsere Softwareprodukte Bauset, Bauset-Hausplaner und meinHausplaner verfügbar.

 

Bauset-Hausplaner basiert auf Bauset und ist ein Produkt der Bott EDV-Systeme GmbH

Verwenden Sie unsere Planungsvorlagen und meinHausplaner-Software - kostenlos für Sie als privaten Bauherren.

 

mehr