Häuser mit Pultdach: Haus PD-17

Dieser Entwurf ist reserviert für die Profi-Lösung:

Bauset-Hausplaner.

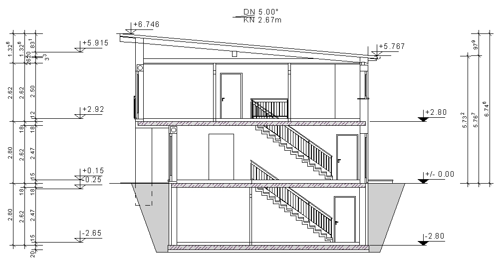
Wohnfläche gesamt    162,94 m²    
Wohnfläche Erdgeschoss   74,94 m²    
Wohnfläche Dachgeschoss    88,00 m²    
         
Bruttorauminhalt    889,763 m³    
         
Bruttogeschossfläche    298,66 m²    
         
Raumaufteilung

     
         
Erdgeschoss   Wohnen     24,37 m²
    Kochen/Essen   18,34 m²
    Arbeiten    11.96 m²
    Hauswirtschaft   8,63 m²
    Diele    8,46 m²
    WC   3,18 m²
         
Dachgeschoss   Eltern   21,10 m²
    Kind 1    17,14 m²
    Gast   13,84 m²
    Bad Eltern     12,50 m²
    Bad Kinder   9,29 m²
    Ankleiden   8,68 m²
    Balkon   3,18 m²

Die komplette Planung(Grundrisse, Ansichten, Schnitte, Bautragspläne), Mengenberechnung, Kalkulation und Visualisierung dieses Hauses wurde erstellt mit der Software Bauset-Hausplaner.

 

Die kompletten Daten sind als Vorlagen für unsere Softwareprodukte Bauset, Bauset-Hausplaner und meinHausplaner verfügbar.

 

Bauset-Hausplaner basiert auf Bauset und ist ein Produkt der Bott EDV-Systeme GmbH

Verwenden Sie unsere Planungsvorlagen und meinHausplaner-Software - kostenlos für Sie als privaten Bauherren.

 

mehr