Häuser mit Pultdach: Haus PD-07

Dieser Entwurf ist reserviert für die Profi-Lösung:

Bauset-Hausplaner.

Wohnfläche gesamt    189,91 m²    
Wohnfläche Erdgeschoss   102,30 m²    
Wohnfläche Dachgeschoss    87,61 m²    
         
Bruttorauminhalt    1141,073 m³    
         
Bruttogeschossfläche    375,39 m²    
         
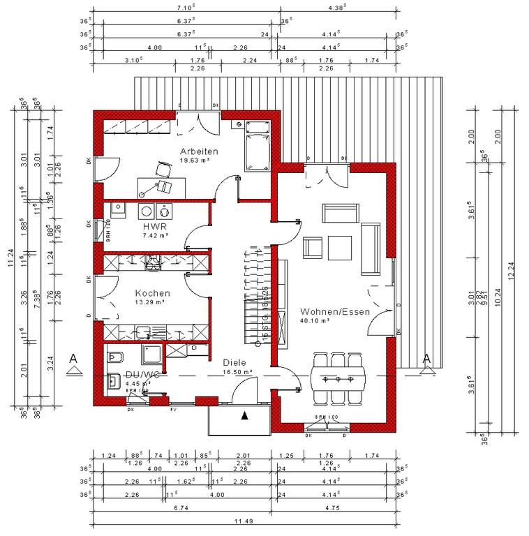
Raumaufteilung

     
         
Erdgeschoss   Wohnen/Essen     40,10 m²
    Arbeiten   19,63 m²
    Diele    17,41 m²
    Kochen    13,29 m²
    Hauswirtschaft   7,42 m²
    DU/WC    4,45 m²
         
Dachgeschoss   Eltern    20,87 m²
    Kind 2    13,24 m²
    Kind 3    13,12 m²
    Empore     12,31 m²
    Kind 1   12,33 m²
    Bad Eltern   9,05 m²
    Bad Kinder   6,69 m²

Die komplette Planung(Grundrisse, Ansichten, Schnitte, Bautragspläne), Mengenberechnung, Kalkulation und Visualisierung dieses Hauses wurde erstellt mit der Software Bauset-Hausplaner.

 

Die kompletten Daten sind als Vorlagen für unsere Softwareprodukte Bauset, Bauset-Hausplaner und meinHausplaner verfügbar.

 

Bauset-Hausplaner basiert auf Bauset und ist ein Produkt der Bott EDV-Systeme GmbH

Verwenden Sie unsere Planungsvorlagen und meinHausplaner-Software - kostenlos für Sie als privaten Bauherren.

 

mehr