Häuser mit Pultdach: Haus PD-05

Dieser Entwurf ist enthalten in den Versionen:

- meinHausplaner PLUS 150 Häuser Edition

- meinHausplaner PRO 150 Häuser Edition

und natürlich in der Profi-Version Bauset-Hausplaner.

 

Möchten Sie diesen Entwurf für sich umplanen und kalkulieren ? Mit den oben aufgeführten meinHausplaner-Versionen kein Problem. Besuchen Sie jetzt den meinHausplaner-Online-Shop - und setzen Sie Ihre Ideen spielerisch einfach am eigenen PC um !

Wohnfläche gesamt   132,33 m²    
Wohnfläche Erdgeschoss   67,68 m²    
Wohnfläche Dachgeschoss   64,65 m²    
         
Bruttorauminhalt   790 m³    
         
Bruttogeschossfläche   254,04 m²    
         
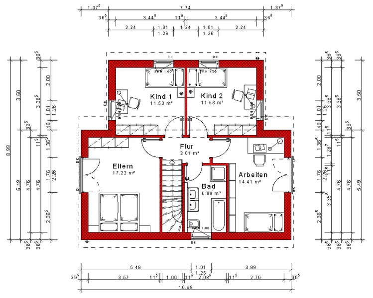
Raumaufteilung

     
         
Erdgeschoss   Kochen/Essen   24,26 m²
    Wohnen   17,75 m²
    Diele   12,08 m²
    Hauswirtschaft   9,32 m²
    WC   2,22 m²
    Flur   2,05 m²
         
Dachgeschoss   Eltern   17,25 m²
    Arbeiten   14,44 m²
    Kind 1   11,53 m²
    Kind 2   11,53 m²
    Bad   6,89 m²
    Flur   3,01 m²

Die komplette Planung (Vertriebsgrundrisse, Ansichten, Schnitte, Bautragspläne), Mengenberechnung und Visualisierung aller Häuser wurde erstellt mit der Software Bauset-Hausplaner.

 

Die kompletten Daten sind als Vorlagen für unsere Softwareprodukte Bauset, Bauset-Hausplaner und meinHausplaner verfügbar.

 

Bauset-Hausplaner basiert auf Bauset und ist ein Produkt der Bott EDV-Systeme GmbH

Verwenden Sie unsere Planungsvorlagen und meinHausplaner-Software - kostenlos für Sie als privaten Bauherren.

 

mehr