Doppelhäuser: Haus DH-32

Dieser Entwurf ist reserviert für die Profi-Lösung:

Bauset-Hausplaner.

Wohnfläche gesamt    140,25 m²    
Wohnfläche Erdgeschoss   46,73 m²    
Wohnfläche Obergeschoss    46,76 m²    
Wohnfläche Dachgeschoss?    46,76 m²    
         
Bruttorauminhalt    736,166 m³    
         
Bruttogeschossfläche    246,36 m²    
         
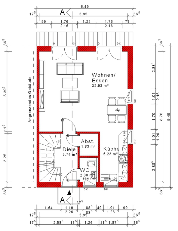
Raumaufteilung

     
         
Erdgeschoss   Wohnen/Essen     32,93 m²
    Kochen   6,23 m²
    Diele    3,74 m²
    WC    2,00 m²
    Abst.   1,83 m²
         
Obergeschoss   Kind 2    12,92 m²
    Kind 1    12,69 m²
    Kind 3    11,68 m²
    Flur   9,47 m²
         
Dachgeschoss   Eltern   14,81 m²
    Bad   11,68 m²
    Arbeiten   10,80 m²
    Flur   9,47 m²

Die komplette Planung(Grundrisse, Ansichten, Schnitte, Bautragspläne), Mengenberechnung, Kalkulation und Visualisierung dieses Hauses wurde erstellt mit der Software Bauset-Hausplaner.

 

Die kompletten Daten sind als Vorlagen für unsere Softwareprodukte Bauset, Bauset-Hausplaner und meinHausplaner verfügbar.

 

Bauset-Hausplaner basiert auf Bauset und ist ein Produkt der Bott EDV-Systeme GmbH

Verwenden Sie unsere Planungsvorlagen und meinHausplaner-Software - kostenlos für Sie als privaten Bauherren.

 

mehr