Doppelhäuser: Haus DH-06

Dieser Entwurf ist enthalten in den Versionen:

- meinHausplaner PLUS 100 Häuser Edition

- meinHausplaner PLUS 150 Häuser Edition

- meinHausplaner PRO 150 Häuser Edition

und natürlich in der Profi-Version Bauset-Hausplaner.

 

Möchten Sie diesen Entwurf für sich umplanen und kalkulieren ? Mit den oben aufgeführten meinHausplaner-Versionen kein Problem. Besuchen Sie jetzt den meinHausplaner-Online-Shop - und setzen Sie Ihre Ideen spielerisch einfach am eigenen PC um !

Wohnfläche gesamt   103,53 m²    
Wohnfläche Erdgeschoss   57,96 m²    
Wohnfläche Dachgeschoss   45,68 m²    
         
Bruttorauminhalt   660 m³    
         
Bruttogeschossfläche   221,03 m²    
         
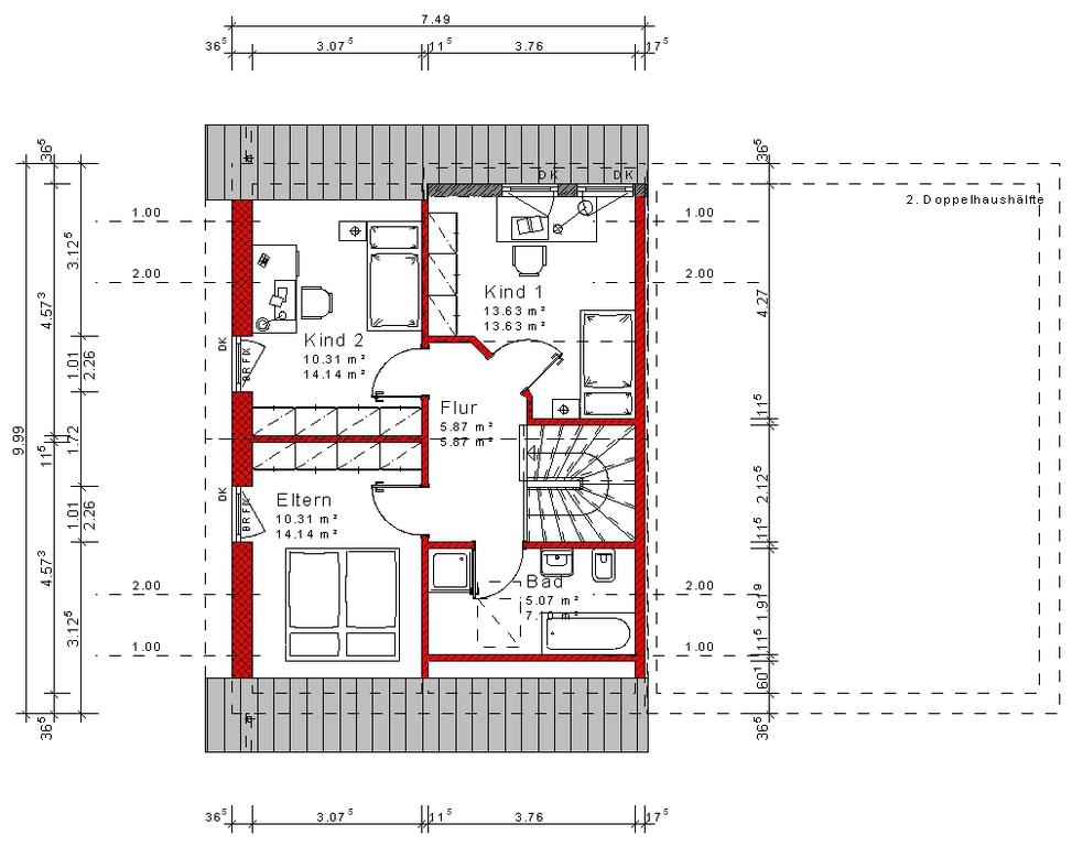
Raumaufteilung

     
         
Erdgeschoss   Wohnen/Essen   29,90 m²
    Kochen   12,22 m²
    Diele   8,88 m²
    Hauswirtschaft   4,64 m²
    WC   2,32 m²
         
Dachgeschoss   Kind 1   14,08 m²
    Eltern   10,46 m²
    Kind 2   10,46 m²
    Bad   5,14 m²
    Flur   5,54 m²

Die komplette Planung (Vertriebsgrundrisse, Ansichten, Schnitte, Bautragspläne), Mengenberechnung und Visualisierung aller Häuser wurde erstellt mit der Software Bauset-Hausplaner.

 

Die kompletten Daten sind als Vorlagen für unsere Softwareprodukte Bauset, Bauset-Hausplaner und meinHausplaner verfügbar.

 

Bauset-Hausplaner basiert auf Bauset und ist ein Produkt der Bott EDV-Systeme GmbH

Verwenden Sie unsere Planungsvorlagen und meinHausplaner-Software - kostenlos für Sie als privaten Bauherren.

 

mehr