Häuser mit Satteldach: Haus SD-230

Dieser Entwurf ist reserviert für die Profi-Lösung:

Bauset-Hausplaner.

Wohnfläche gesamt   118,75 m²    
Wohnfläche Erdgeschoss   70.96 m²    
Wohnfläche Dachgeschoss    47,79 m²    
         
Bruttorauminhalt    720,510 m³    
         
Bruttogeschossfläche   261,59 m²    
         
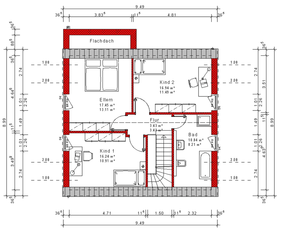
Raumaufteilung

     
         
Erdgeschoss   Wohnen/Essen     36,71 m²
    Arbeiten   9,50 m²
    Diele   9,39 m²
    Kochen    8,38 m²
    Hauswirtschaft   4,00 m²
    WC    2,98 m²
         
Dachgeschoss   Eltern    13,26 m²
    Kind 2    11,69 m²
    Kind 1    11,10 m²
    Bad    8,31 m²
    Flur   3,43 m²

Die komplette Planung(Grundrisse, Ansichten, Schnitte, Bautragspläne), Mengenberechnung, Kalkulation und Visualisierung dieses Hauses wurde erstellt mit der Software Bauset-Hausplaner.

 

Die kompletten Daten sind als Vorlagen für unsere Softwareprodukte Bauset, Bauset-Hausplaner und meinHausplaner verfügbar.

 

Bauset-Hausplaner basiert auf Bauset und ist ein Produkt der Bott EDV-Systeme GmbH

Verwenden Sie unsere Planungsvorlagen und meinHausplaner-Software - kostenlos für Sie als privaten Bauherren.

 

mehr