Häuser mit Satteldach: Haus SD-180

Dieser Entwurf ist reserviert für die Profi-Lösung:

Bauset-Hausplaner.

Wohnfläche gesamt    115,15 m²    
Wohnfläche Erdgeschoss   61,70 m²    
Wohnfläche Dachgeschoss    53,45 m²    
         
Bruttorauminhalt    695,986 m³    
         
Bruttogeschossfläche   242,49 m²    
         
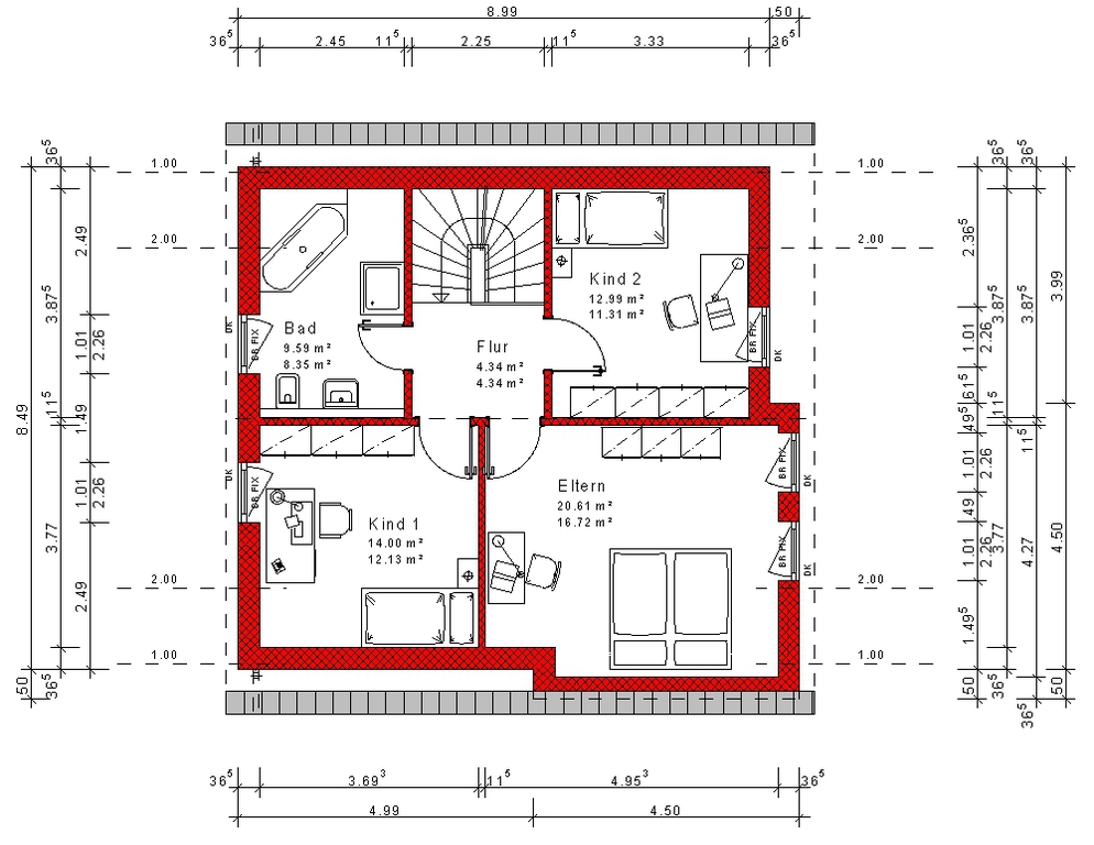
Raumaufteilung

     
         
Erdgeschoss   Wohnen/Essen     25,99 m²
    Arbeiten   12,79 m²
    Kochen   9,81 m²
    Windfang    5,28 m²
    Flur   4,21 m²
    DU/WC   3,62 m²
         
Dachgeschoss   Eltern    17,13 m²
    Kind 1    12,21 m²
    Kind 2    11,37 m²
    Bad     8,40 m²
    Flur   4,34 m²

Die komplette Planung(Grundrisse, Ansichten, Schnitte, Bautragspläne), Mengenberechnung, Kalkulation und Visualisierung dieses Hauses wurde erstellt mit der Software Bauset-Hausplaner.

 

Die kompletten Daten sind als Vorlagen für unsere Softwareprodukte Bauset, Bauset-Hausplaner und meinHausplaner verfügbar.

 

Bauset-Hausplaner basiert auf Bauset und ist ein Produkt der Bott EDV-Systeme GmbH

Verwenden Sie unsere Planungsvorlagen und meinHausplaner-Software - kostenlos für Sie als privaten Bauherren.

 

mehr