Häuser mit Satteldach: Haus SD-227

Dieser Entwurf ist reserviert für die Profi-Lösung:

Bauset-Hausplaner.

Wohnfläche gesamt    151,70 m²    
Wohnfläche Erdgeschoss   77,77 m²    
Wohnfläche Dachgeschoss    73,93 m²    
         
Bruttorauminhalt    864,766 m³    
         
Bruttogeschossfläche    289,65 m²    
         
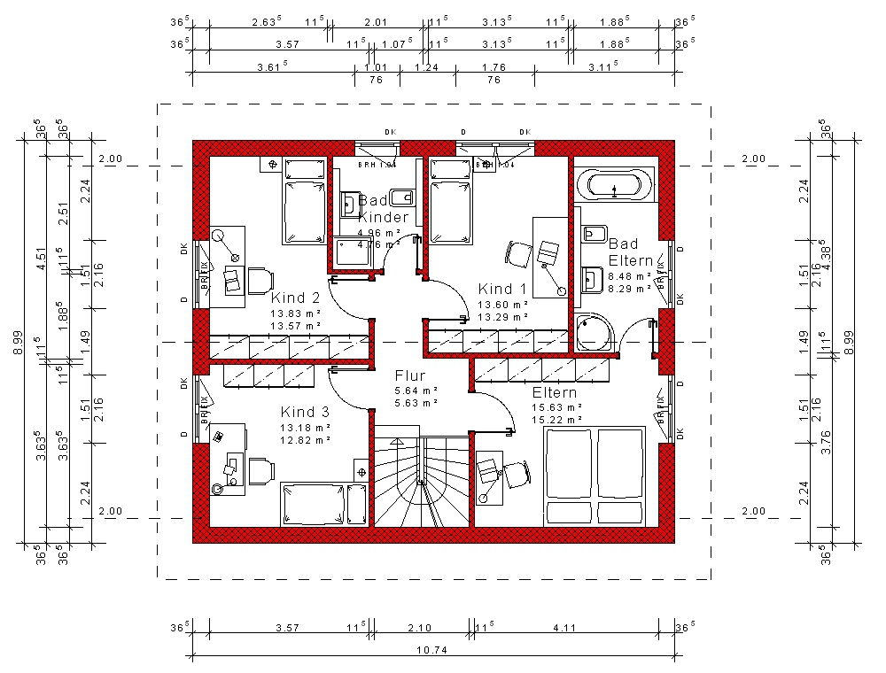
Raumaufteilung

     
         
Erdgeschoss   Wohnen/Essen     51,02 m²
    Kochen    14,49 m²
    Hauswirtschaft    5,19 m²
    Windfang   4,99 m²
    WC    2,08 m²
         
Dachgeschoss   Eltern    15,30 m²
    Kind 1   13,35 m²
    Kind 2    13,62 m²
   

Kind 3 

    12,90 m²
    Bad Eltern   8,33m² 
    Flur   5,63 m²
    Bad Kinder   4,80 m²

Die komplette Planung(Grundrisse, Ansichten, Schnitte, Bautragspläne), Mengenberechnung, Kalkulation und Visualisierung dieses Hauses wurde erstellt mit der Software Bauset-Hausplaner.

 

Die kompletten Daten sind als Vorlagen für unsere Softwareprodukte Bauset, Bauset-Hausplaner und meinHausplaner verfügbar.

 

Bauset-Hausplaner basiert auf Bauset und ist ein Produkt der Bott EDV-Systeme GmbH