Häuser mit Satteldach: Haus SD-22

Dieser Entwurf ist enthalten in den Versionen:

- meinHausplaner PLUS 50 Häuser Edition

- meinHausplaner PLUS 100 Häuser Edition

- meinHausplaner PLUS 150 Häuser Edition

- meinHausplaner PRO 150 Häuser Edition

und natürlich in der Profi-Version Bauset-Hausplaner.

 

Möchten Sie diesen Entwurf für sich umplanen und kalkulieren ? Mit den oben aufgeführten meinHausplaner-Versionen kein Problem. Besuchen Sie jetzt den meinHausplaner-Online-Shop - und setzen Sie Ihre Ideen spielerisch einfach am eigenen PC um !

Steckbrief

Wohnfläche gesamt   141,66  m²    
Wohnfläche Erdgeschoss   79,91 m²    
Wohnfläche Dachgeschoss    61,75 m²    
         
Bruttorauminhalt inkl. Keller    831,477 m³    
         
Bruttogeschossfläche inkl. Keller   288,06 m²    
         
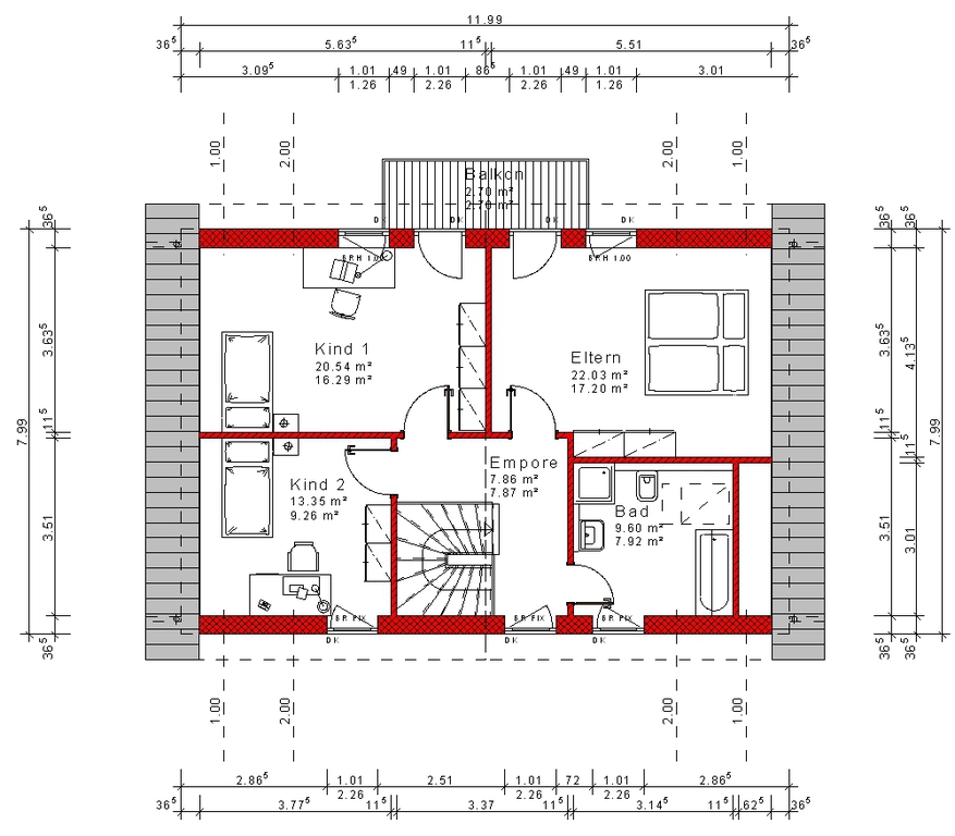
Raumaufteilung

     
         
Erdgeschoss   Wohnen/Essen     29,24 m²
    Kochen     14,69 m²
    Arbeiten   12,40 m²
    Diele     11,97 m²
    Hauswirtschaft   6,61 m²
    Flur   2,62 m²
    WC    2,38 m²
         
Dachgeschoss   Eltern   17,36 m²
    Kind 1   16,44 m²
    Kind 2   9,40 m²
    Bad    7,98 m²
    Empore   7,87 m²
    Balkon    2,70 m²

Die komplette Planung(Grundrisse, Ansichten, Schnitte, Bautragspläne), Mengenberechnung, Kalkulation und Visualisierung dieses Hauses wurde erstellt mit der Software Bauset-Hausplaner.

 

Die kompletten Daten sind als Vorlagen für unsere Softwareprodukte Bauset, Bauset-Hausplaner und meinHausplaner verfügbar.

 

Bauset-Hausplaner basiert auf Bauset und ist ein Produkt der Bott EDV-Systeme GmbH