Häuser mit Satteldach: Haus SD-142

Dieser Entwurf ist reserviert für die Profi-Lösung:

Bauset-Hausplaner.

Wohnfläche gesamt    149,81 m²    
Wohnfläche Erdgeschoss   82,49 m²    
Wohnfläche Dachgeschoss    67,32 m²    
         
Bruttorauminhalt    861,177 m³    
         
Bruttogeschossfläche    304,65 m²    
         
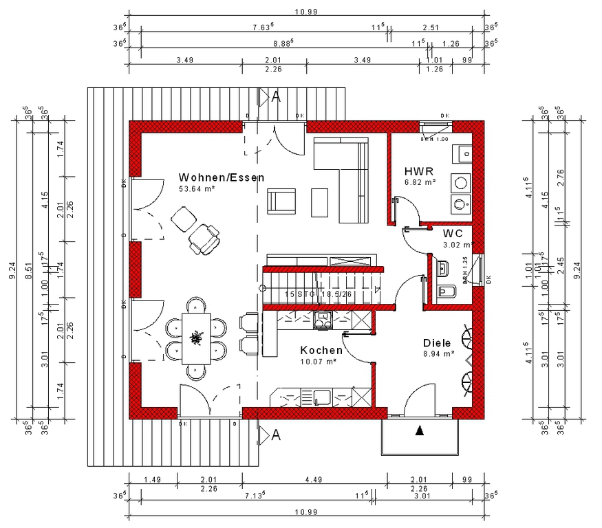
Raumaufteilung

     
         
Erdgeschoss   Wohnen/Essen     53,64 m²
    Kochen   10,07 m²
    Diele    8,94 m²
    Hauswirtschaft    6,82 m²
    WC   3,02 m²
         
Dachgeschoss   Kind 1    16,35 m²
    Eltern    13,80 m²
    Kind 2    12,12 m²
    Flur     10,89 m²
    Bad   8,22 m²
    Ankleiden   5,94 m²

Die komplette Planung(Grundrisse, Ansichten, Schnitte, Bautragspläne), Mengenberechnung, Kalkulation und Visualisierung dieses Hauses wurde erstellt mit der Software Bauset-Hausplaner.

 

Die kompletten Daten sind als Vorlagen für unsere Softwareprodukte Bauset, Bauset-Hausplaner und meinHausplaner verfügbar.

 

Bauset-Hausplaner basiert auf Bauset und ist ein Produkt der Bott EDV-Systeme GmbH