Häuser mit Satteldach: Haus SD-82

Dieser Entwurf ist enthalten in den Versionen:

- meinHausplaner PLUS 150 Häuser Edition

- meinHausplaner PRO 150 Häuser Edition

und natürlich in der Profi-Version Bauset-Hausplaner.

 

Möchten Sie diesen Entwurf für sich umplanen und kalkulieren ? Mit den oben aufgeführten meinHausplaner-Versionen kein Problem. Besuchen Sie jetzt den meinHausplaner-Online-Shop - und setzen Sie Ihre Ideen spielerisch einfach am eigenen PC um !

Steckbrief

Wohnfläche gesamt   135,87 m²    
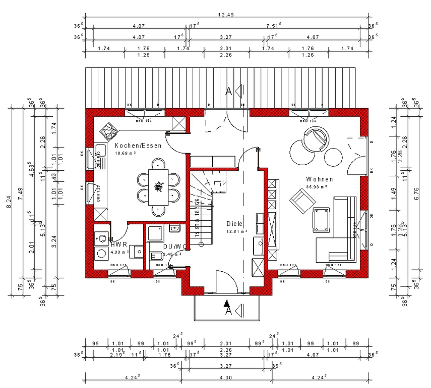
Wohnfläche Erdgeschoss   77,42 m²    
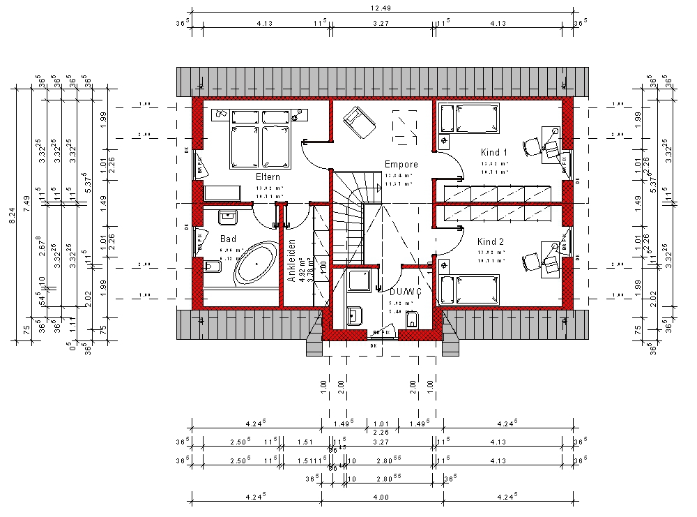
Wohnfläche Dachgeschoss    58,45 m²    
         
Bruttorauminhalt inkl. Keller    816,668 m³    
         
Bruttogeschossfläche inkl. Keller    289,65 m²    
         
Raumaufteilung

     
         
Erdgeschoss   Wohnen    35,93 m²
    Kochen/Essen    18,69 m²
    Diele     15,01 m²
    Hauswirtschaft   4,33 m²
    DU/WC    3,46 m²
         
Dachgeschoss   Eltern    10,63 m²
    Ankleide   3,75 m²
    Kind 1    10,63 m²
    Kind 2    10,63 m²
    Bad     6,10 m²
    DU/WC   5,39
    Empore   11,32 m²

Die komplette Planung(Grundrisse, Ansichten, Schnitte, Bautragspläne), Mengenberechnung, Kalkulation und Visualisierung dieses Hauses wurde erstellt mit der Software Bauset-Hausplaner.

 

Die kompletten Daten sind als Vorlagen für unsere Softwareprodukte Bauset, Bauset-Hausplaner und meinHausplaner verfügbar.

 

Bauset-Hausplaner basiert auf Bauset und ist ein Produkt der Bott EDV-Systeme GmbH