Häuser mit Satteldach: Haus SD-04

Dieser Entwurf ist enthalten in den Versionen:

- meinHausplaner PLUS 50 Häuser Edition

- meinHausplaner PLUS 100 Häuser Edition

- meinHausplaner PLUS 150 Häuser Edition

- meinHausplaner PRO 150 Häuser Edition

und natürlich in der Profi-Version Bauset-Hausplaner.

 

Möchten Sie diesen Entwurf für sich umplanen und kalkulieren ? Mit den oben aufgeführten meinHausplaner-Versionen kein Problem. Besuchen Sie jetzt den meinHausplaner-Online-Shop - und setzen Sie Ihre Ideen spielerisch einfach am eigenen PC um !

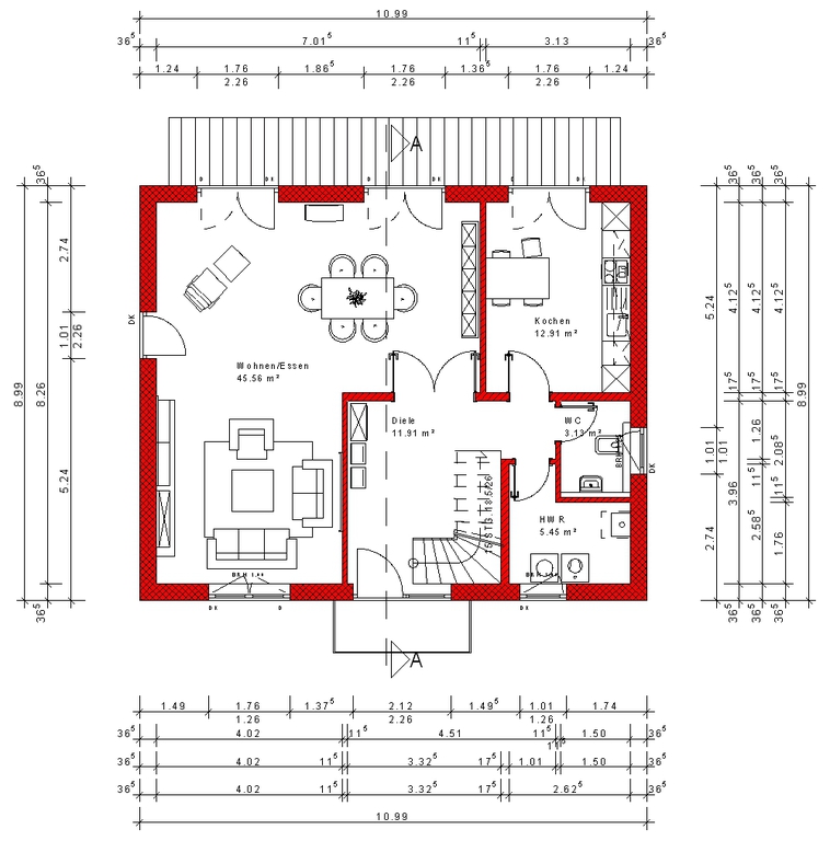
Steckbrief

Wohnfläche gesamt    134,55 m²  
       
Wohnfläche Erdgeschoss   79,74 m²  
Wohnfläche Dachgeschoss   54,81 m²  
       
Bruttorauminhalt   794,125 m³  
       
Bruttogeschossfläche   291,66 m²  
       
Raumaufteilung

     
         
Erdgeschoss   Wohnen/Essen   45,36 m²
    Kochen   13,19 m²
    Diele   11,78 m²
    Hauswirtschaft   5,35 m²
    WC   3,06 m²
         
Dachgeschoss   Eltern   13,16 m²
    Kind 1   11,93 m²
    Kind 2   13,40 m²
    Bad   7,86 m²
    Galerie   8,46 m²

Die komplette Planung(Grundrisse, Ansichten, Schnitte, Bautragspläne), Mengenberechnung, Kalkulation und Visualisierung dieses Hauses wurde erstellt mit der Software Bauset-Hausplaner.

 

Die kompletten Daten sind als Vorlagen für unsere Softwareprodukte Bauset, Bauset-Hausplaner und meinHausplaner verfügbar.

 

Bauset-Hausplaner basiert auf Bauset und ist ein Produkt der Bott EDV-Systeme GmbH