Häuser mit Satteldach: Haus SD-260

Dieser Entwurf ist reserviert für die Profi-Lösung:

Bauset-Hausplaner.

Wohnfläche gesamt    173,43 m²    
Wohnfläche Erdgeschoss   90,30 m²    
Wohnfläche Dachgeschoss    83,13 m²    
         
Bruttorauminhalt    990,877 m³    
         
Bruttogeschossfläche    340,41 m²    
         
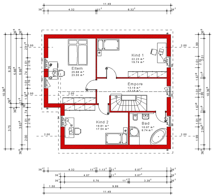
Raumaufteilung

     
         
Erdgeschoss   Wohnen/Essen     48,36 m²
    Kochen    14,48 m²
    Diele    11,82 m²
    Hauswirtschaft   10,11 m²
    DU/WC    5,53 m²
         
Dachgeschoss   Eltern    23,64 m²
    Kind 1    19,86 m²
    Kind 2    17,65 m²
    Empore     13,18 m²
    Bad   8,80 m²

Die komplette Planung(Grundrisse, Ansichten, Schnitte, Bautragspläne), Mengenberechnung, Kalkulation und Visualisierung dieses Hauses wurde erstellt mit der Software Bauset-Hausplaner.

 

Die kompletten Daten sind als Vorlagen für unsere Softwareprodukte Bauset, Bauset-Hausplaner und meinHausplaner verfügbar.

 

Bauset-Hausplaner basiert auf Bauset und ist ein Produkt der Bott EDV-Systeme GmbH

Verwenden Sie unsere Planungsvorlagen und meinHausplaner-Software - kostenlos für Sie als privaten Bauherren.

 

mehr