Häuser mit Satteldach: Haus SD-24

Dieser Entwurf ist enthalten in den Versionen:

- meinHausplaner PLUS 50 Häuser Edition

- meinHausplaner PLUS 100 Häuser Edition

- meinHausplaner PLUS 150 Häuser Edition

- meinHausplaner PRO 150 Häuser Edition

und natürlich in der Profi-Version Bauset-Hausplaner.

 

Möchten Sie diesen Entwurf für sich umplanen und kalkulieren ? Mit den oben aufgeführten meinHausplaner-Versionen kein Problem. Besuchen Sie jetzt den meinHausplaner-Online-Shop - und setzen Sie Ihre Ideen spielerisch einfach am eigenen PC um !

Steckbrief

Wohnfläche gesamt    178,86 m²    
Wohnfläche Erdgeschoss   108,28 m²    
Wohnfläche Dachgeschoss    70,58 m²    
         
Bruttorauminhalt inkl. Keller    998,277 m³    
         
Bruttogeschossfläche inkl. Keller    370,24 m²    
         
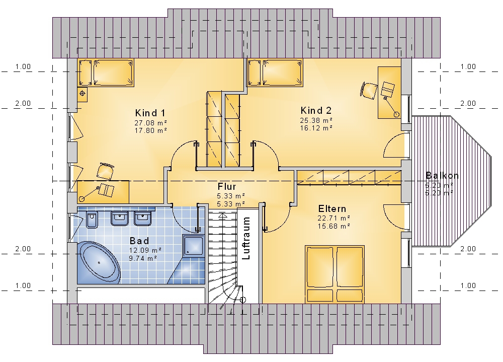
Raumaufteilung

     
         
Erdgeschoss   Wohnen    31,39 m²
    Essen   12,91 m²
    Kochen     14,35 m²
    Schlafen   15,78 m²
    Kind   12,20 m²
    Diele   10,71 m²
    Bad   5,89 m²
    Flur   3,21 m²
    WC   1,84 m²
         
Dachgeschoss   Eltern   15,87 m²
    Kind 1   18,01 m²
    Kind 2   16,34 m²
    Bad    9,83 m²
    Flur   5,33 m²
    Balkon    5,20 m²

Die komplette Planung(Grundrisse, Ansichten, Schnitte, Bautragspläne), Mengenberechnung, Kalkulation und Visualisierung dieses Hauses wurde erstellt mit der Software Bauset-Hausplaner.

 

Die kompletten Daten sind als Vorlagen für unsere Softwareprodukte Bauset, Bauset-Hausplaner und meinHausplaner verfügbar.

 

Bauset-Hausplaner basiert auf Bauset und ist ein Produkt der Bott EDV-Systeme GmbH

Verwenden Sie unsere Planungsvorlagen und meinHausplaner-Software - kostenlos für Sie als privaten Bauherren.

 

mehr