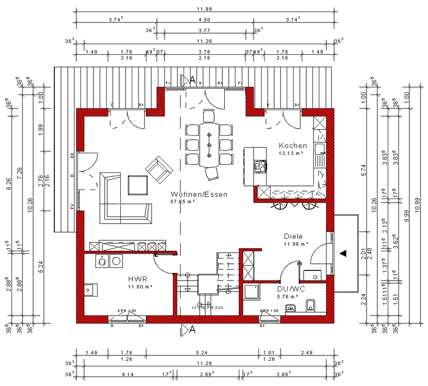
Häuser mit Satteldach: Haus SD-188

Dieser Entwurf ist reserviert für die Profi-Lösung:

Bauset-Hausplaner.

Die komplette Planung(Grundrisse, Ansichten, Schnitte, Bautragspläne), Mengenberechnung, Kalkulation und Visualisierung dieses Hauses wurde erstellt mit der Software Bauset-Hausplaner.

 

Die kompletten Daten sind als Vorlagen für unsere Softwareprodukte Bauset, Bauset-Hausplaner und meinHausplaner verfügbar.

 

Bauset-Hausplaner basiert auf Bauset und ist ein Produkt der Bott EDV-Systeme GmbH

Verwenden Sie unsere Planungsvorlagen und meinHausplaner-Software - kostenlos für Sie als privaten Bauherren.

 

mehr